Residential Refurbishment

Tavistock Road

Location: Notting Hill, London, W11

Project Type: 5-Storey Residential Block Refurbishment

Completion Date: 2026

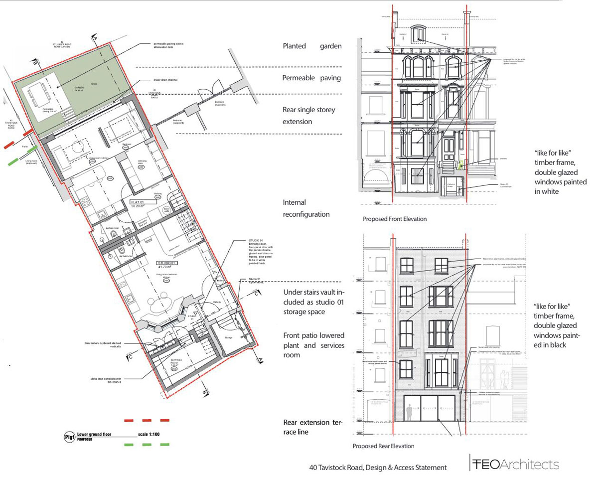
This elegant five-storey block in the heart of Notting Hill comprises three flats and four bedsits. With generously sized interiors, high ceilings, and original period features, the building offered significant potential.

The project involved refurbishing the block into a best-in-class rental product, preserving its original character while enhancing functionality, comfort, and long-term value for residents.

Quantity Surveying & Commercial Services Provided

  • Commercial Project Management and Oversight
  • Cost Control and Variation Management
  • Final Account Settlement

Client Impact

"By overseeing the project commercially, managing cost control, and settling the final account, we ensured the successful transformation of 40 Tavistock Road into a high-quality, functional residential block. The refurbishment preserves the building’s historic charm while delivering a best-in-class rental experience."

Featured residential Projects

Turner Samuel work on a range of projects from residential to commercial, private, public, local national and international partners.

See ALL Projects

Talk To Us

If you want tighter cost control, stronger contracts, and better financial outcomes, we’d be happy to discuss your project.

Book a Consultation